ABOUT GARRAPATA STATE PARK
Garrapata State Park has two miles of beach front, with coastal hiking and a 50-foot climb to a beautiful view of the Monterey Bay National Marine Sanctuary, a federal marine protected area. The park offers diverse coastal vegetation with trails running from ocean beaches into dense redwood groves. The park also features outstanding coastal headlands at Soberanes Point. Sea lions, harbor seals and sea otters frequent the coastal waters and California gray whales pass close by during their yearly migration.
Location-Directions
The park is located on Highway 1, 6.7 miles south of Rio Road in Carmel (18 miles north of Big Sur).
Seasons/Climate/Recommended Clothing
The weather can be changeable. Layered clothing is advised.
Due to the high volume of visitors to the Big Sur area, please use extreme caution when parking and when accessing trails on either side of Hwy 1.

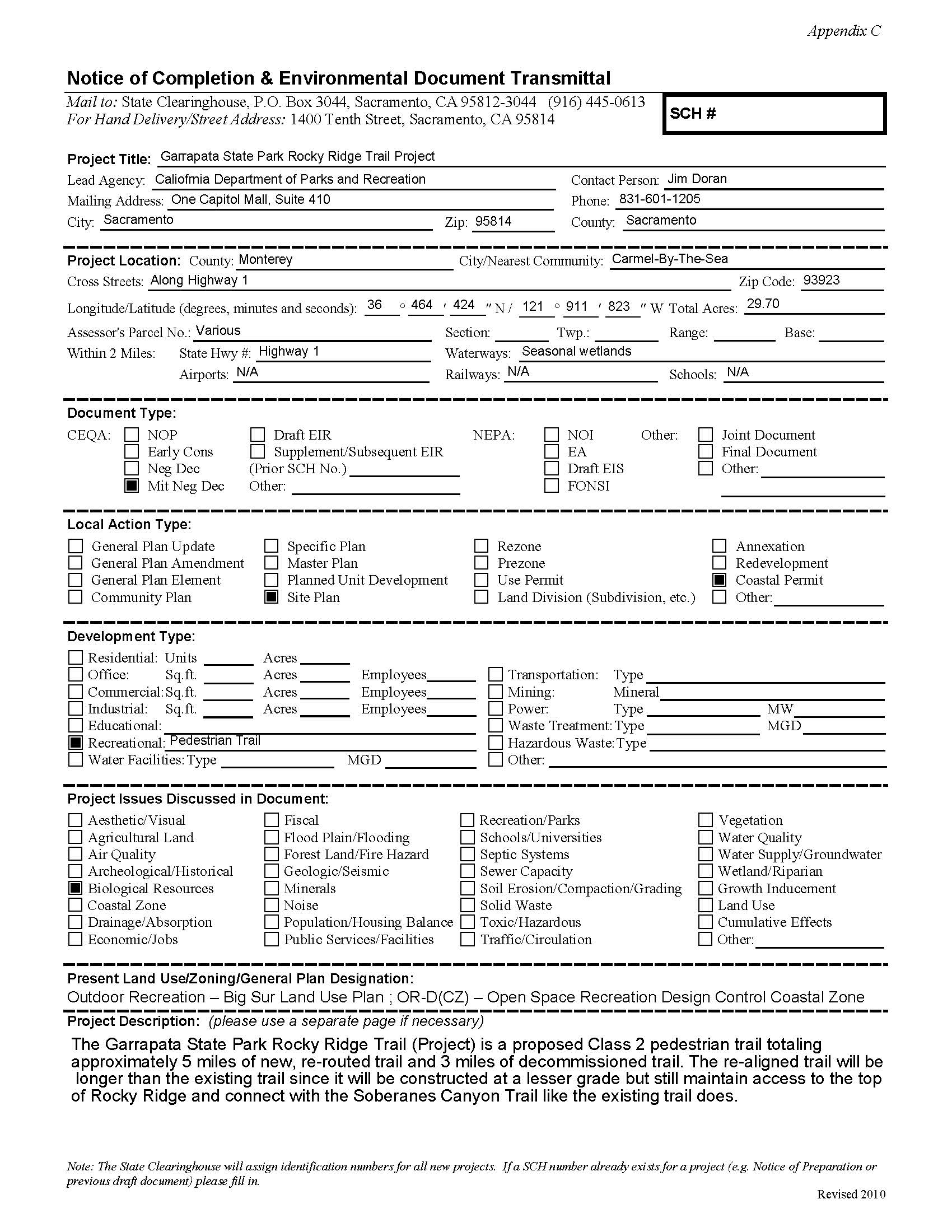
Rocky Ridge Trail Project
Initial Study/ Mitigated Negative Declaration: Garrapata State Park Rocky Ridge Trail Project Declaration


.jpg)
SOBERANES CANYON TRAIL and ROCKY RIDGE TRAIL
Located on the East side of Highway 1, the Soberanes Canyon Trail is currently open. The Rocky Ridge Trail is CLOSED due to hazardous conditions.
The Soberanes Trail is open exclusively from the main, gated trailhead on the east side of Highway 1, across from Gate 8 of the Garrapata Coastal Trail. The hike is along the 1.25 mile length of the trail to the back of the canyon. Plan on an out and back hike as the Rocky Ridge portion of the trail is closed due to hazardous conditions.
Due to the high volume of visitors to the Big Sur area, please use extreme caution when parking and when accessing trails on either side of Hwy 1.
DOGS
There is limited access for dogs on leash at the Garrapata State Park beach area:
Dogs ON LEASH are ONLY allowed on the beach at Gate 19 (south end of park) and on the trails leading to it.
Dogs are NOT allowed in all other areas, including across Hwy 1 in the Soberanes Canyon Trail area.
Thank you for partnering with CA State Parks to protect our habitat areas' wildlife by adhering to dogs on leash regulations!
Invasive Jubata Grass Informational
Join us on a brief journey to understand what an invasive non-native species is, where Jubata Grass (often called Pampas Grass) came from, why it is a problem in California, and what the public can do to help restore and protect the Big Sur Coast. Story Map Link.jpg)
Marine Protected Area Coloring Book - Area Marina Protegida - Libro Para Colorear
Embark on a journey of discovery about Marine protection in a fun and easy way!!
The Marine Protected Areas Coloring Book - Area Marina Protegida - Libro Para Colorear - helps students of all ages learn about the rich diversity of plant and animal life found in California's Marine Protected Areas (MPAs). The book includes three new 3D augmented reality coloring pages that will allow students to interact with their colorings using a smartphone or tablet while learning about marine life and California's marine protected areas.
Download the new marine protected area (MPA) coloring book along with the California Coastal Explorer Guide at: https://www.mpacollaborative.org/kids/